Машинатор » Габарит подвижного состава

Габарит подвижного состава

24 дек
---
2
0

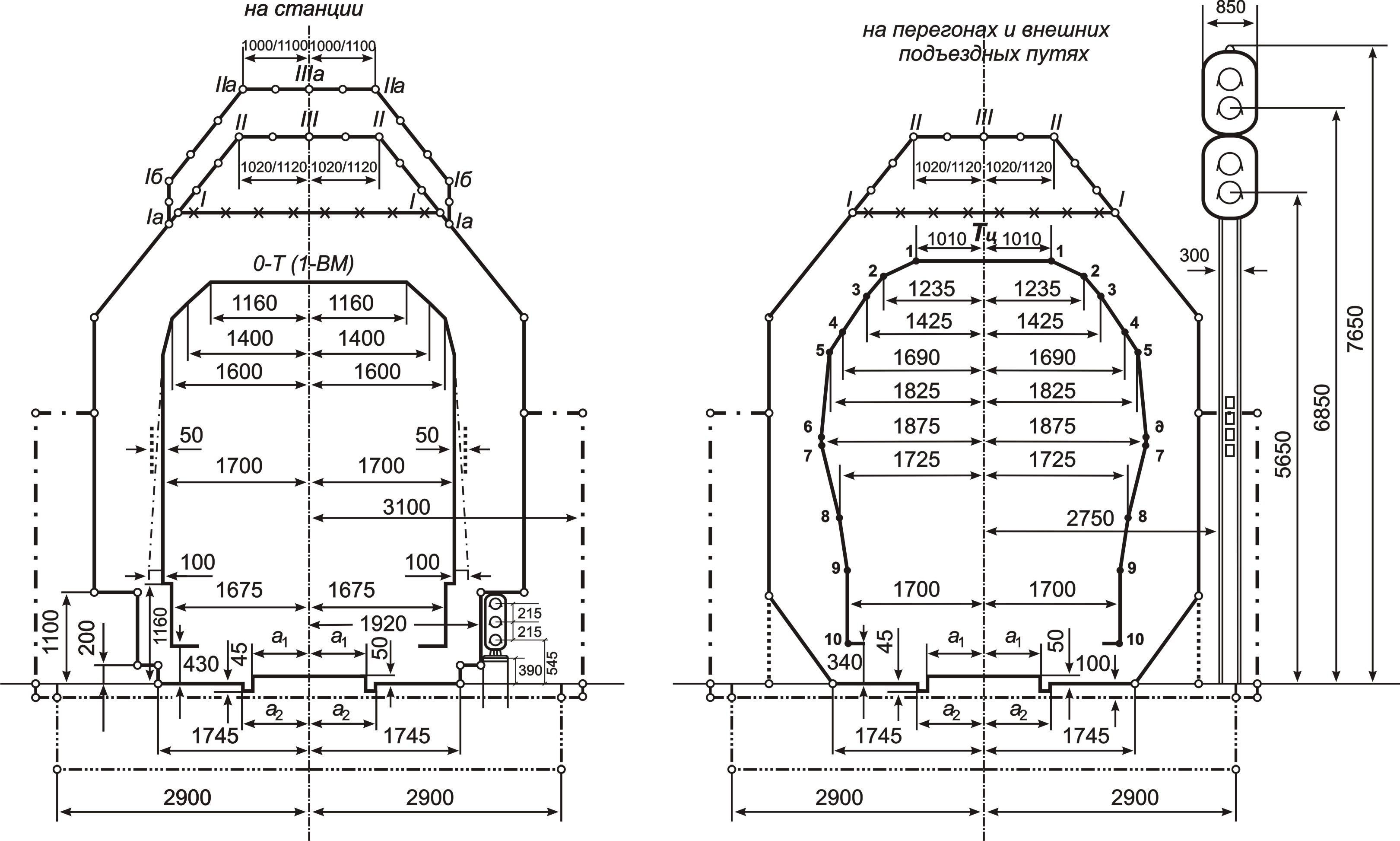
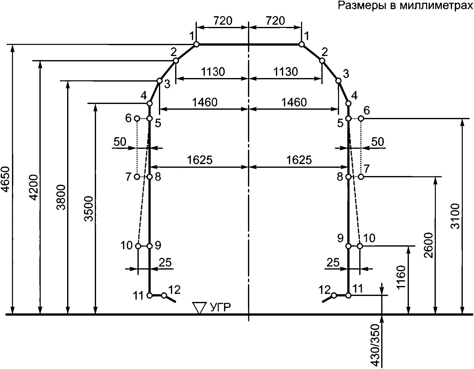
Габарит вагона 1-ВМ
Габарит вагона 1-ВМ

Габарит 1-т подвижного состава
Габарит 1-т подвижного состава

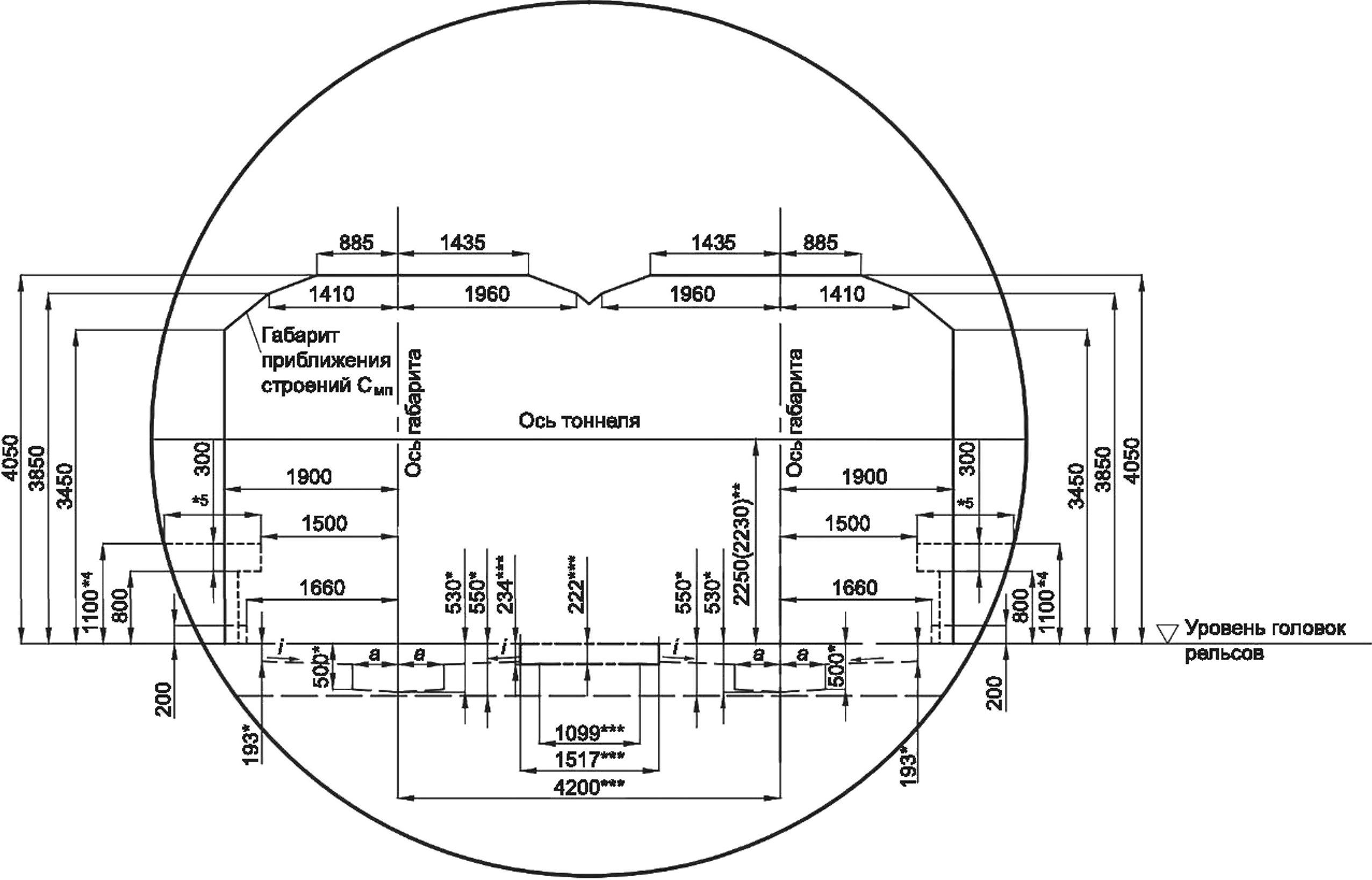
Габарит приближения подвижного состава
Габарит приближения подвижного состава



Габарит 1-ВМ подвижного состава
Габарит 1-ВМ подвижного состава

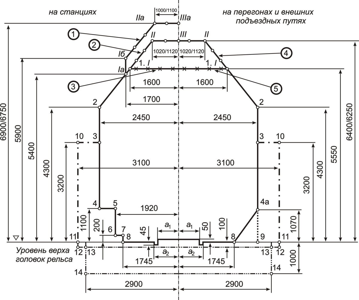
Габарит приближения строения на ЖД
Габарит приближения строения на ЖД



Габарит приближения строений и габарит подвижного состава
Габарит приближения строений и габарит подвижного состава

Габарит 1-т подвижного состава
Габарит 1-т подвижного состава

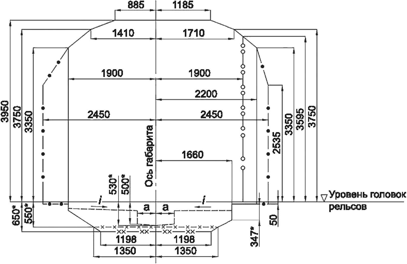
Габариты приближения строения с и с250
Габариты приближения строения с и с250

Габарит приближения строения на ЖД

Фото: Габарит приближения строения на ЖД








Отметьте изображение габарита подвижного состава
Отметьте изображение габарита подвижного состава

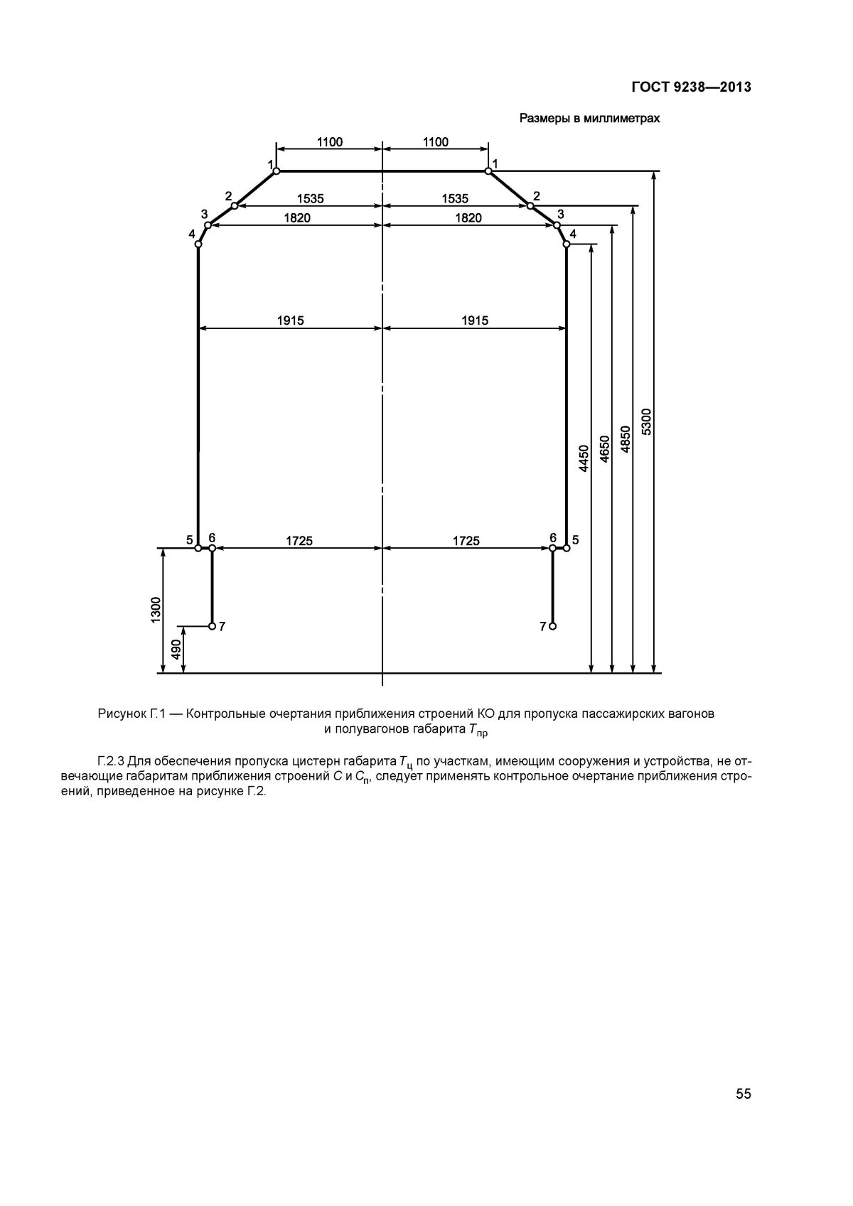
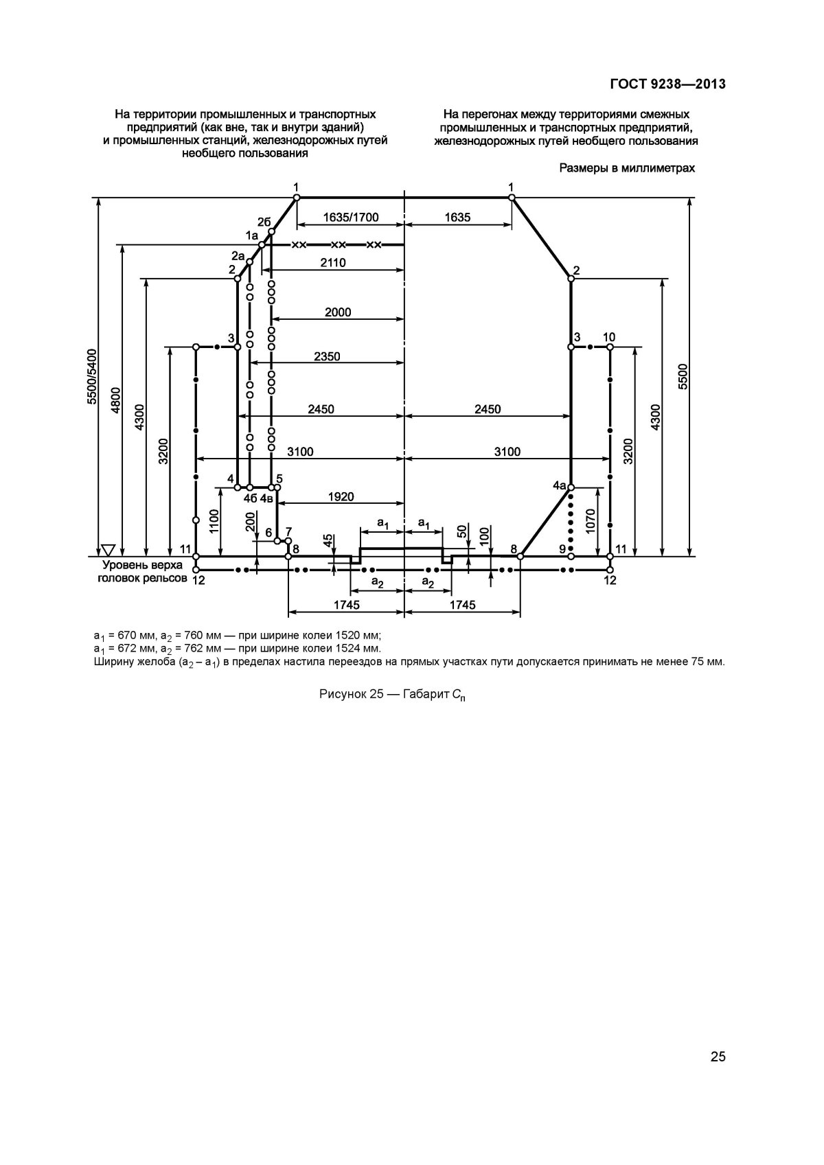
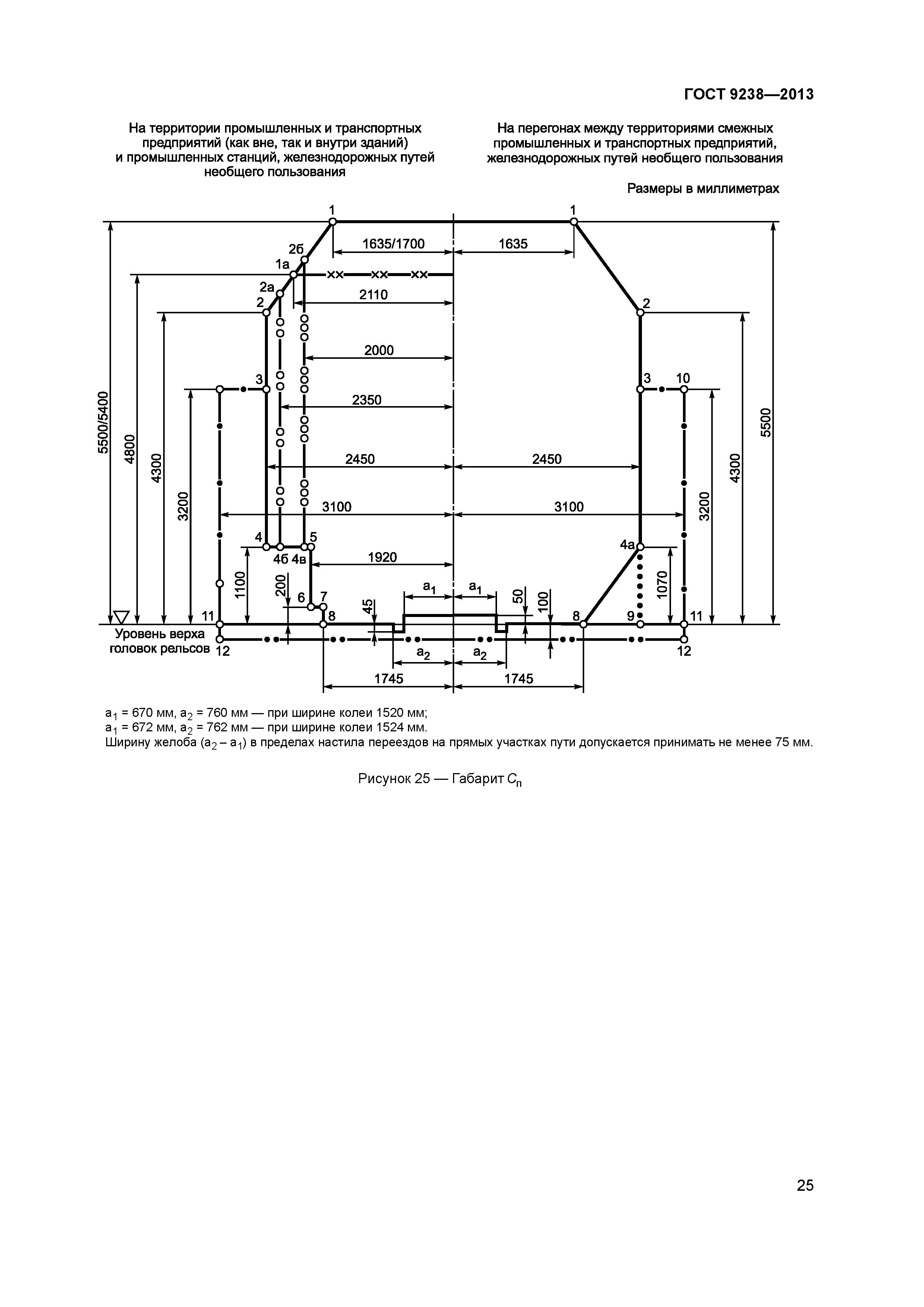
ГОСТ 9238-2013 габариты железнодорожного
ГОСТ 9238-2013 габариты железнодорожного

Чертёж габарита подвижного состава на Железнодорожном
Чертёж габарита подвижного состава на Железнодорожном







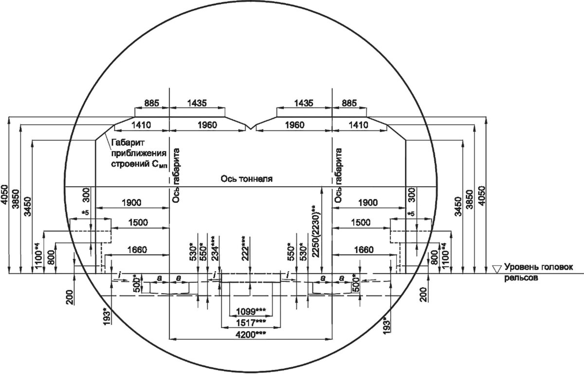
Габарит приближения оборудования метрополитен
Габарит приближения оборудования метрополитен

Железнодорожный габарит 02-ВМ
Железнодорожный габарит 02-ВМ

Габариты приближения строения с и с250
Габариты приближения строения с и с250



Габарит 1-ВМ подвижного состава
Габарит 1-ВМ подвижного состава

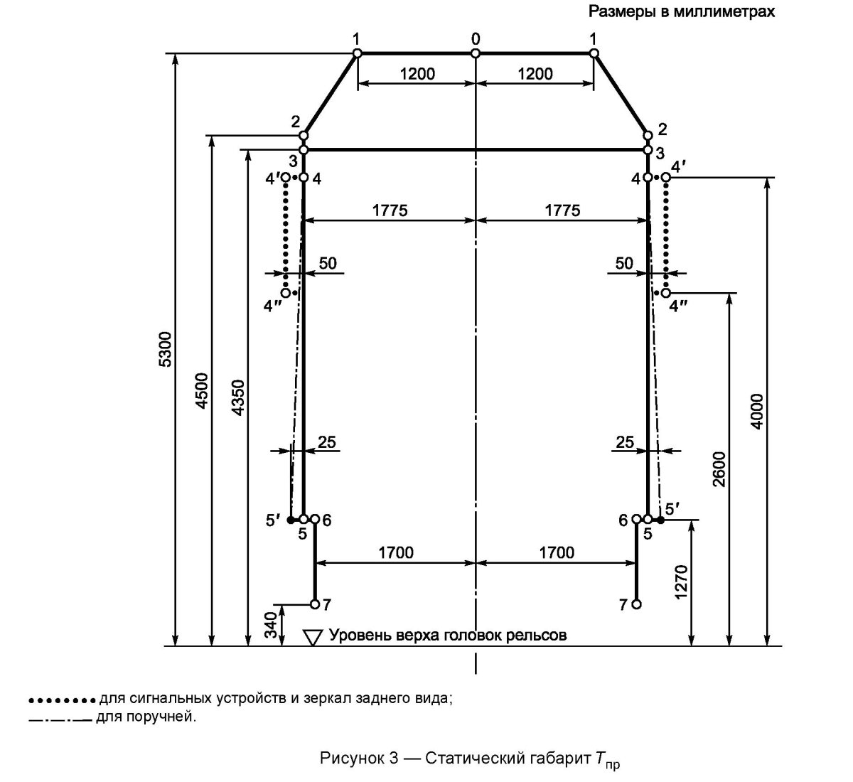
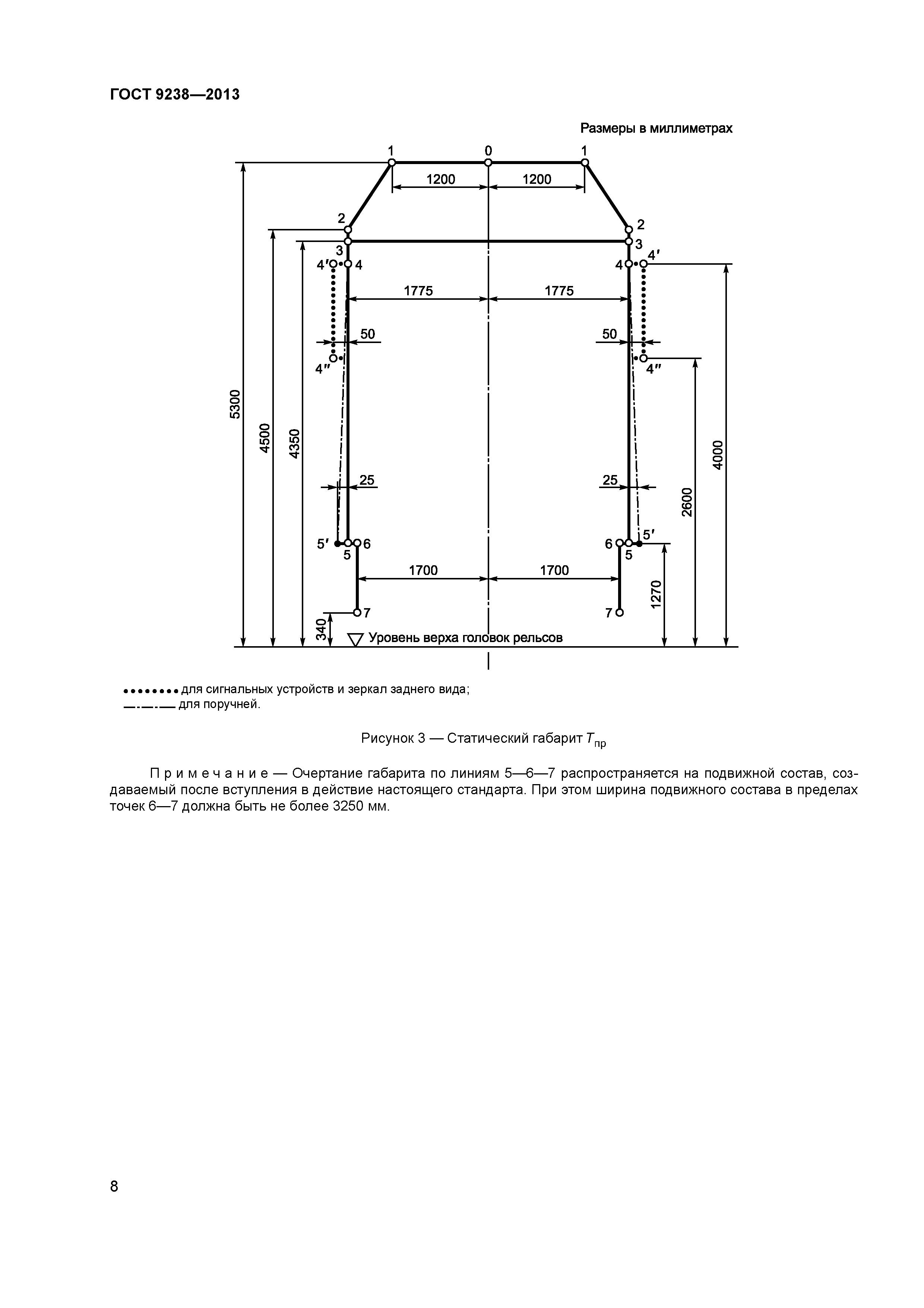
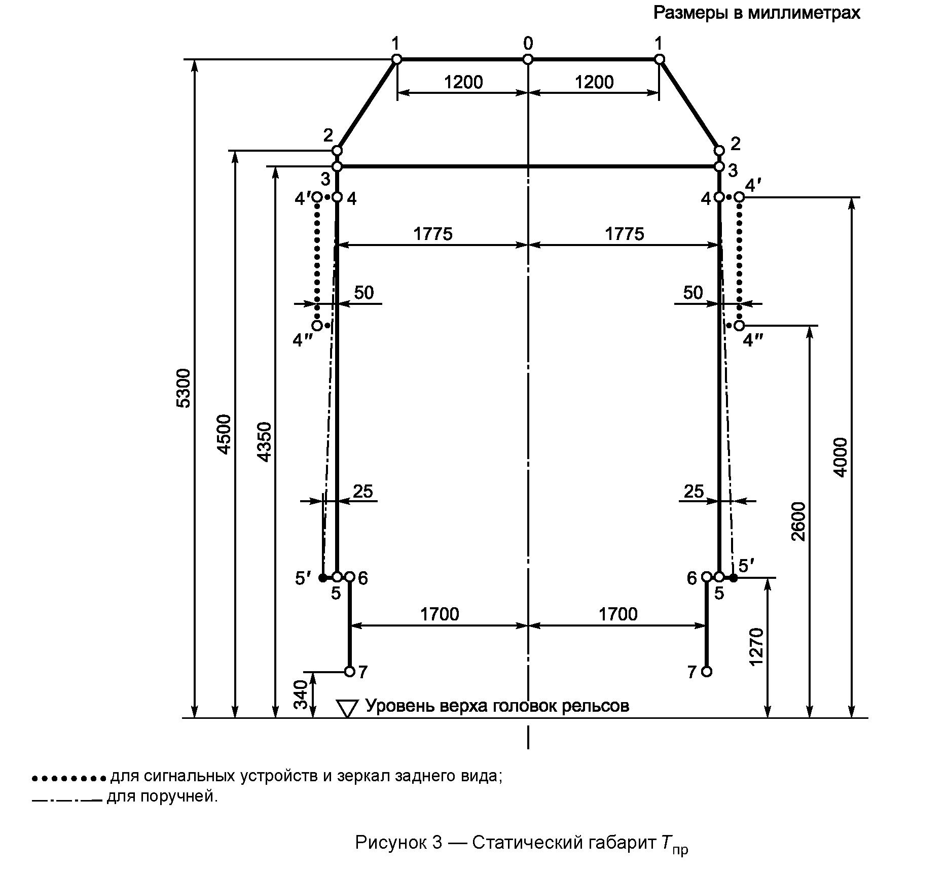
Габарит ТПР подвижного состава
Габарит ТПР подвижного состава

Габарит вагона 1-ВМ
Габарит вагона 1-ВМ

Габарит приближения строения на ЖД
Габарит приближения строения на ЖД



Габарит ЖД подвижного состава и приближения строений
Габарит ЖД подвижного состава и приближения строений

ГОСТ габарит приближения строения на ЖД
ГОСТ габарит приближения строения на ЖД

Габарит 1-т подвижного состава
Габарит 1-т подвижного состава



Габарит т1 ЖД
Габарит т1 ЖД

Габарит приближения строений
Габарит приближения строений



ГОСТ габариты приближения строений и подвижного состава
ГОСТ габариты приближения строений и подвижного состава

Габарит метрополитена ГОСТ
Габарит метрополитена ГОСТ

Габарит 1-ВМ подвижного состава
Габарит 1-ВМ подвижного состава



Габарит приближения подвижного состава
Габарит приближения подвижного состава

Габарит 1-т подвижного состава ГОСТ 9238-2013
Габарит 1-т подвижного состава ГОСТ 9238-2013



Габариты подвижного состава железных дорог
Габариты подвижного состава железных дорог







Габарит 1-т подвижного состава ГОСТ 9238-2013
Габарит 1-т подвижного состава ГОСТ 9238-2013



Габариты подвижного состава железных дорог колеи 1520
Габариты подвижного состава железных дорог колеи 1520

Железнодорожный габарит ГОСТ
Железнодорожный габарит ГОСТ





Колея 1524 и 1520
Колея 1524 и 1520



Габарит кузова вагона 1 ВМ
Габарит кузова вагона 1 ВМ







Габарит т1 ЖД

Фото: Габарит т1 ЖД


Габарит ТПР подвижного состава
Габарит ТПР подвижного состава















Железнодорожный габарит 02-ВМ
Железнодорожный габарит 02-ВМ

Габариты приближения строений и подвижного состава
Габариты приближения строений и подвижного состава

Отметьте изображение габарита приближения строений
Отметьте изображение габарита приближения строений

Габарит 0-ВМ подвижного состава
Габарит 0-ВМ подвижного состава



Габарит приближения строения метро
Габарит приближения строения метро

Габарит приближения строений железных дорог
Габарит приближения строений железных дорог



















Габарит приближения строений РЖД
Габарит приближения строений РЖД






Похожие фото:

Комментарии
Минимальная длина комментария - 50 знаков. комментарии модерируются
Кликните на изображение чтобы обновить код, если он неразборчив